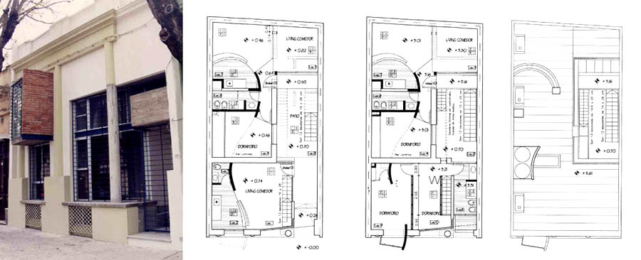
Casona Guaná. Rehabilitación de una casona “estándar” datada de 1900 y su transformación en un condominio de 3 unidades resultando dos viviendas de un nivel con 1 dormitorio y una triplex de 2 dormitorios con un estudio en el nivel semienterrado. Promoción, proyecto, dirección de obra. 185 m2













